Tu navegador no soporta el uso de javascript y por lo tanto muchas de las funcionalidades de esta web no estarán disponibles. Allhouses Servicios Inmobiliarios - APARTAMENTO NUEVO EN CASABLANCA

APARTAMENTO NUEVO EN CASABLANCA Venta

160.000 €

Doblada-San Roque > Vigo
Ref.: P000192
54 m2
1
1
Descripción
Apartamento en la Doblada
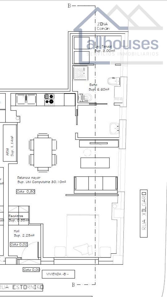
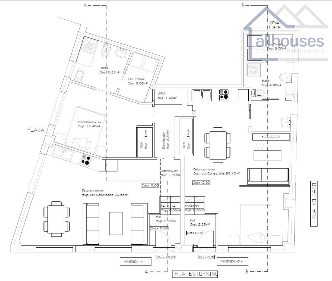
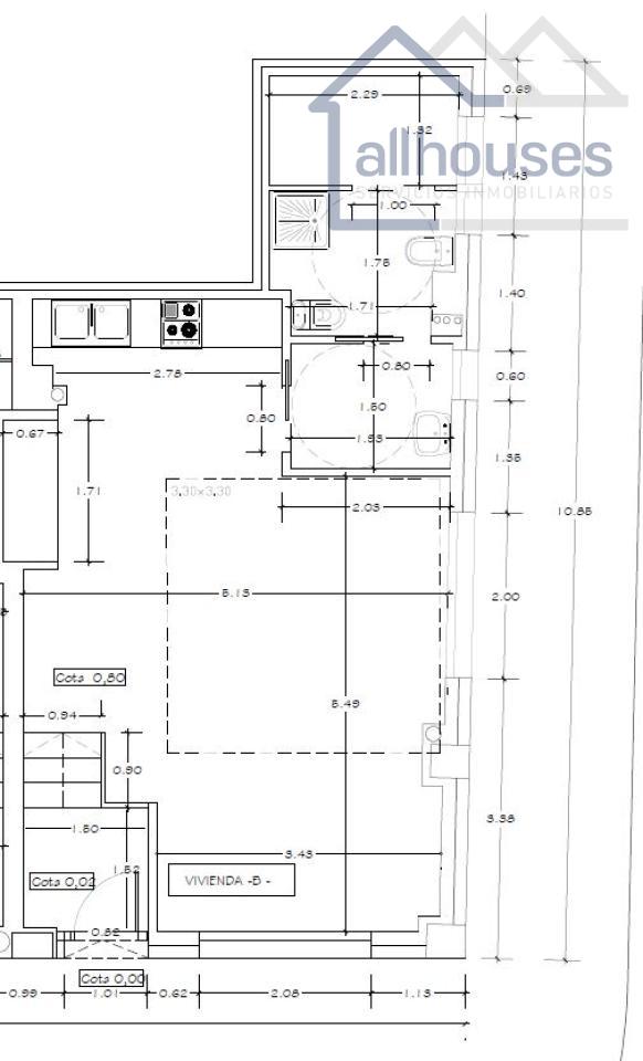
Descubre este exclusivo apartamento de 54 m² en planta baja de obra nueva, situado en la zona Casablanca (Calvario), Vigo. Ideal tanto para dejar de pagar alquiler como para invertir sin necesidad de reformar, ofrece:
Acceso independiente desde la calle y sin portal compartido, para máxima privacidad. Dormitorio independiente con espacio para cama de matrimonio y armario empotrado. Salón-comedor diáfano con cocina americana totalmente amueblada y equipada con electrodomésticos básicos. Baño completo con moderna columna de ducha y práctico espacio de lavandería. Amplios armarios empotrados, optimizando el almacenaje y el orden. Carpintería de aluminio lacada en gris, ventanas oscilobatientes y cerramientos de altas prestaciones. Suelos a elegir entre tarima de diseño o gres de primera calidad.

Estancias exteriores y luminosas, con un diseño actual y acogedor. Zona consolidada con todos los servicios (comercios, colegios, transporte público) y excelente comunicación con el centro y la salida de la ciudad.

No dejes pasar esta oportunidad: vive en un piso a estrenar con todo lo que necesitas a pie de calle, o incorpóralo a tu cartera de inversión.

Contáctanos en Agencia Inmobiliaria Allhouses y te asesoraremos sin compromiso, poniendo a su disposición todos los servicios que necesita para la compra. No dude en pedir más información y concertar una visita.
Tu nuevo hogar o inversión te está esperando.
Este anuncio es únicamente informativo y puede tener algún error involuntario
__________
ALLHOUSES
Con nosotros... como en casa.
+INFO 620 873 735
Características
Referencia
P000192
Año de reforma
2025
Antigüedad
31 años
Tipo de piso
Apartamento
Cert. Energética
En Trámite
Superficie
54 m2
Habitaciones
1
Baños
1
Calefacción
Tipo calefacción
Gas Individual
Ascensor
Garaje incluido
Trastero
Cocina americana
Luminoso
Exterior
Doble cristal
Armarios empotrados
(1)
Ubicación
Visualizar ubicación en Google Street View
(Recordatorio: Este servicio depende exclusivamente de Google y no está disponible para todas las ubicaciones)
Calificación Energética
Certificación en proceso de tramitación.
Calificación Energética
Contacte ahora

Si lo prefiere rellene este cuestionario
Nombre
Teléfono
E-mail
Forma de contacto
Consulta
Información básica Protección de Datos
Responsable del tratamiento: ALLHOUSES
Finalidad: Atender y contestar su consulta
Legitimación: Consentimiento expreso del interesado
Destinatarios: No se ceden datos a terceros excepto obligados por Ley
Derechos: Puede ejercer sus derechos de acceso, rectificación o supresión, así como otros detallamos en la información adicional sobre Protección de Datos
Información adicional: para más información visita nuestra Política de Privacidad
He leído y acepto la Política de Privacidad
Sí, deseo recibir información comercial de ALLHOUSES
¡Compártelo!